Меню
щоденно з 8.00 до 18.00 Замовити дзвінок
Дніпро, вул. Ярмарковий узвіз 17
Наша адреса:
Дніпро, вул. Ярмарковий узвіз 17

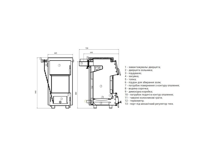
Котел твердопаливний Thermo Alliance Magnum SSF 16 з плитою

Опис

Котел твердопаливний Thermo Alliance Magnum SSF 16 з плитою призначений не тільки для обігріву житла, але й також для приготування їжі. Водогрійний стальний котел обладнаний варильною поверхнею з високоміцного чавуну с двома конфорками. Тверде паливо, яке забезпечує роботу пристрою, необхідно завантажувати вручну. Це можуть бути дрова, кам’яне вугілля, брикеті з торфу чи тирси. Є можливість регулювання дверцят: щільності прилягання, сторони відкривання.

Характеристики
Характеристики
Автоматика Немає
Артикул 15903MSSF16
Бренд Thermo Alliance
Вага котла без води, кг 118
Варильна поверхня Одна конфорка
Виведення димоходу Вертикальний
Вид палива Дрова, брикети, вугілля
Випробувальний тиск, бар 3
Габаритні розміри котла (ВхШхГ), мм 940х500х720
Габаритні розміри топки (ВхШхГ), мм 595х310х308
Габаритні розміри упаковки (ВхШхГ), мм 1040х500х720
Гарантія 36 міс.
Діаметр підключення димоходу, мм 160
Діаметр підключення до системи опалення 1" 1/2
Димохідна коробка Є
Зливний патрубок Немає
Кількість ходів теплообмінника 1 полиця, 1 хід
Кількість чавунних колосників 1,5
ККД, % 78
Код УКТЗЕД 8403
Країна виробник Україна
Країна реєстрації бренду Україна
Максимальний робочий тиск, бар 2
Матеріал теплоізоляції Мінеральна вата
Механізм скидання золи Немає
Модель MSSF16
Необхідна тяга в димоході 10/20
Об‘єм води в котлі, л 47
Об‘єм топки, дм³ 57
Опалювальна площа до, м² 160
Площа теплообміну, м² 1,2
Порт під вентилятор Немає
Порт під групу безпеки Немає
Порт під пелетний пальник Немає
Порт під регулятор тяги 3/4" в
Порт під ТЕН Немає
Потужність, кВт 16
Розмір завантажувального вікна (ВхШ), мм 225x310
Розмір колосника, мм 200х300
Серія Magnum SSF
Сторона відкриття дверей Універсальна
Температура води в котлі (мін./макс.), °C 57/95
Тип виробу Твердопаливний котел
Тип колосникових грат Чавунні
Товщина стали теплообмінника, мм 3
Товщина теплоізоляції, мм 23
  • Нет в наличии
  • Модель: SD00022000
  • Бренд: Thermo Alliance
delivery
Доставка

Новой Почтой

Justin

Укрпочта - при 100% предоплате

Delivery - при 100% предоплате

Самовывоз (г. Днепр)

payment
Оплата

Оплата на карту ПриватБанк, Monobank

Наложенный платеж

Безналичный расчет для юридических лиц

warranty
Гарантия

Вся продукция высочайшего качества

Предоставляем гарантию от поставщика

Відгуків0
0/ 5
середній рейтинг товара
0
0
0
0
0
Немає відгуків про цей товар.
Вас також може зацікавити
Нещодавно переглянуте