Меню
щоденно з 8.00 до 18.00 Замовити дзвінок
Дніпро, вул. Ярмарковий узвіз 17
Наша адреса:
Дніпро, вул. Ярмарковий узвіз 17

Клапан зворотній підривний ITAP 1/2" 367 з флажком

Клапан зворотний підривної (зі скиданням) ручка 1/2 "ITAP 367
Країна виробник - Італія
       Компанія Itap вже багато років є одним з визнаних міжнародних лідерів з виробництва запірної і запобіжної арматури для систем водопостачання та опалення.
Все підривні клапана ITAP тестуються на виробництві!

      Вся продукція компанії виробляється в Італії і відповідає всім європейським і українським стандартам якості
     Назад-запобіжний (підривної) клапан ITAP 367 застосовується для того, щоб
1. Запобігти витік води з бака при відсутності тиску в системі, і як наслідок запобігти перегорання водяного Тена в повітряному середовищі (функція зворотного клапана)
2. Оберігати від утворення надлишкового тиску у водонагрівачі (при збільшенні обсягу води, в процесі її нагрівання), або від постійного надмірного тиску в системі (запобіжна функція).
Клапан забезпечений ручкою для ручного (примусового) скидання надлишкового тиску
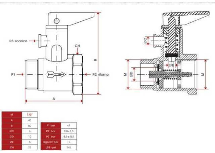
Технічні характеристики підривного клапана:
Корпус нікельована латунь
Пружини з нержавіючої сталі
Сідло з нейлону
Ущільнення з NBR
Максимальна робоча температура: 120 ° C
Уставка: 8,5 bar
Різьблення: ISO228 (еквівалентно DIN EN ISO 228 і BS EN ISO 228).
Розміри (см. Рис)
        
                                переваги:
 Невеликі розміри
 Всі підривні клапана ITAP тестуються на виробництві
 Міцність і тривала експлуатаційна придатність
 Незначне зношування при активних амортизаційних діях
 Забезпечує надійне функціонування системи різних видів опалення
 Підвищена герметичність
 Оптимальне співвідношення якість - ціна

  • Нет в наличии
  • Модель: 1113
  • Бренд: ITAP
delivery
Доставка

Новой Почтой

Justin

Укрпочта - при 100% предоплате

Delivery - при 100% предоплате

Самовывоз (г. Днепр)

payment
Оплата

Оплата на карту ПриватБанк, Monobank

Наложенный платеж

Безналичный расчет для юридических лиц

warranty
Гарантия

Вся продукция высочайшего качества

Предоставляем гарантию от поставщика

Відгуків0
0/ 5
середній рейтинг товара
0
0
0
0
0
Немає відгуків про цей товар.
Вас також може зацікавити
Нещодавно переглянуте